












FLOORPLAN
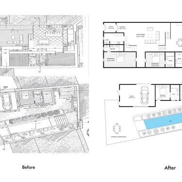
After some high-quality photos for the listing, the floorplan is the next most crucial marketing material needed for a successful property listing to gather people’s attention. Buyers are less likely to enquire if a property has no floorplan. Potential buyers love to visualize how they could live in the property, picturing if it is perfect for them or not, leading to better, more informed leads for the listing.
We can redraw floorplans from builder's plans, sketches, old floorplans
We can create site plans from sketches, drone images.
We create black & White floorplan , color floorplan, With and Without furniture floorplan
